Наша новая работа - встроенный белый шкаф в прихожую.
К нам обратилась клиентка с запросом на шкаф в прихожую. Мы согласовали проект и остановились на решении с открытой секцией для обуви. В конструкции шкафа грамотно учли электрощиток, сохранив к нему свободный доступ. Также вывели розетки в удобных местах. В итоге получилась функциональная и аккуратная прихожая.
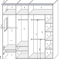
Шкаф встроенный: Ширина 2470, высота 2684, глубина 618
- Корпус 1: ЛДСП Эггер U104 ST9 Алебастр белый
- Корпус 2 (полки): ЛДСП Эггер Н3133 ST12 Дуб Давос трюфель
- Фасад: МДФ, Эмаль матовая NCS S 0603-Y-20R
- Открытая секция для обуви
- Интегрированные ручки
- Без задней стенки
Стоимость шкафа составляет 233 700 руб. под ключ (включая доставку, сборку и подъем).
Срок изготовления: 35 рабочих дней. Проект реализован в январе 2026 года.
Мы создаем шкафы на заказ по вашим размерам и пожеланиям. Стоимость зависит от габаритов, комплектации и выбранных материалов. Если вам понравился этот шкаф, свяжитесь с нами - бесплатно сделаем расчет и ответим на все вопросы!






