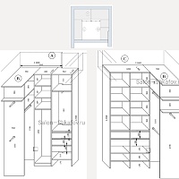
Наша работа - П-образная гардеробная.
К нам обратился клиент с запросом на гардеробную - важно было не просто разместить хранение, а сделать всё технически правильно и удобно в повседневной жизни. Перед изготовлением мы учли все нюансы помещения:
- корректно вынесли щитки,
- предусмотрели розетки,
- согласовали расположение элементов так, чтобы доступ ко всем инженерным узлам оставался удобным,
- продумали наполнение гардеробной под реальные сценарии использования.
В итоге пространство получилось функциональным, аккуратным и логично организованным - без компромиссов между эстетикой и практичностью. Такие проекты начинаются с внимания к деталям, и именно это позволяет сделать мебель, которой действительно удобно пользоваться каждый ден:ь.
Гардеробная: Ширина 1050, высота 2500, глубина 450/410
- Материал: ЛДСП Эггер W960 ST7 Белый классический
- Ящики AQ, дно ящиков - ЛДСП
Стоимость шкафа составляет 189 050 руб. под ключ (включая доставку, сборку и подъем).
Срок изготовления: 15 рабочих дней. Проект реализован в декабре 2025 года.
Мы создаем шкафы и мебель на заказ по вашим размерам и пожеланиям. Стоимость зависит от габаритов, комплектации и выбранных материалов. Если вам понравился этот шкаф, свяжитесь с нами - бесплатно сделаем расчет и ответим на все вопросы!




